
भारी लिफ्ट क्रेन, डबल बीम गैन्ट्री क्रेन 30 टन
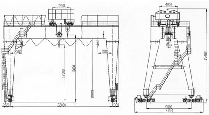
हुक के साथ डबल बीम गैन्ट्री क्रेन आम उठाने और अनलोडिंग कार्यों को करने के लिए वेयरहाउस या रेलवे के किनारे के बाहर लागू किया जाता है। इस प्रकार का क्रेन पुल से बना है, पैरों का समर्थन करता है, क्रेन यात्रा अंग, मजबूत उठाने वाले चरखी, विद्युत उपकरण और नियंत्रण प्रणाली के साथ ट्रॉली। इसके भारी कर्तव्य डिजाइन के रूप में, इसका व्यापक रूप से सभी प्रकार के औद्योगिक क्षेत्र में उपयोग किया जा सकता है।




